layout
オフィスレイアウト設計
オフィスレイアウト設計を無料でスピード対応
選ばれる理由
01無料作成
選ばれる理由
02スピード対応が可能
選ばれる理由
03オフィスレイアウトを提案
オフィスレイアウト設計に関して
このようなことでお困りではありませんか?
九州(福岡・熊本・鹿児島・宮崎・佐賀)での
オフィスレイアウト設計はお任せください
九州オフィスづくり.comは、福岡県、熊本県、鹿児島県、宮崎県、佐賀県で年間700件以上のオフィスづくりをサポートしています。九州オフィスづくり.comでは、お客さまのご要望に沿ったオフィスレイアウトの設計に迅速に対応することができます。急なオフィスレイアウト変更やオフィスリニューアルのご要望もお気軽にご相談ください。九州オフィスづくり.comでは、オフィスレイアウト設計をスピード対応をすることが可能です。お客さまのご希望にあったオフィスレイアウトを短期間で提案することで、オフィスレイアウト変更やオフィス移転をスムーズに行うことが可能です。九州(福岡、熊本、鹿児島、宮崎、佐賀)でオフィスレイアウト設計を検討されている場合は、九州オフィス.comにご相談ください。


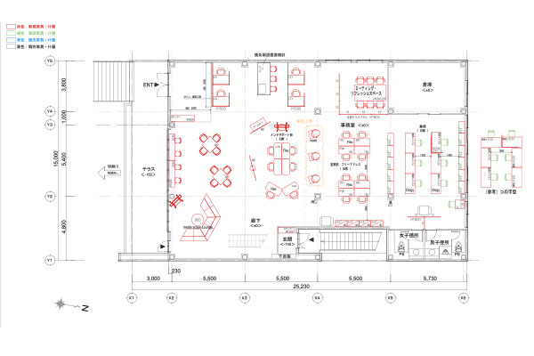
オフィスレイアウトの設計事例
九州オフィスづくり.comが行ったオフィスレイアウト設計事例です。お客さま一人ひとりのご要望やご予算に寄り添い、理想のオフィスづくりを後押しする最適なオフィスレイアウトをご提案します。






九州オフィスづくり.comが選ばれる理由
オフィスレイアウト設計の進め方
九州オフィスづくり.comがオフィスレイアウトプランをお客さまに最適な形で提案するために行っているオフィスレイアウト設計の流れをご紹介いたします。
九州オフィスづくり.comの施工事例
九州オフィスづくり.comが行ったオフィス施工事例です。私たちは年間700件以上の豊富な施工実績があります。九州(福岡・熊本・鹿児島・宮崎・佐賀)でのオフィスレイアウト設計は、豊富な経験のある九州オフィスづくり.comにお任せください。
よくあるご質問
レイアウト図面の作成については、内装工事や家具のご依頼をいただいた場合、通常は無料で対応しております。ただし、デザイン性を重視したプランをご希望の際には設計料が別途発生する場合がございます。料金や対応内容の詳細につきましては、まずはお気軽にご相談ください。お客様のご要望に応じた内容をご提案いたします。
九州オフィスづくり.comでは、生産性の向上を目的としたオフィスリニューアルについて多くの実績があります。現代のオフィス環境においては、効率的な業務が進められることや従業員同士の連携が活発になることが、企業の成長や成果につながります。
はい、九州オフィスづくり.comでは、オフィスのリニューアルを通じてお客様の採用力向上に貢献した実績があります。オフィス環境の改善や職場の魅力向上により、優秀な人材の採用にプラスの効果が期待できます。
はい、九州オフィスづくり.comでは、コミュニケーション活性化に繋がるオフィスづくりの豊富な実績があります。お客様の企業文化や働き方に応じて、円滑なコミュニケーションやチームワークの向上につながるようなさまざまな工夫を取り入れたオフィスプランをご提案いたします。
はい、もちろん可能です。九州オフィスづくり.comでは、経験と知識を持つスタッフが、お客様のご要望やオフィス環境、働き方に合わせたオフィスづくりをサポートしています。単にオフィスの設計を行うのではなく、社員の生産性向上や働きやすい環境になるように実用性を重視したオフィス空間のご提案を行っております。
はい、もちろん可能です。九州オフィスづくり.comでは、豊富な経験と知識を持つスタッフがお客様のご要望や働く環境、働き方に合わせて理想のオフィスのイメージを具体化しオフィスのプラン作成に反映いたします。どうぞお気軽にご相談ください。お客様の理想のオフィスを実現するため、私たちが全力でお手伝いさせていただきます。
現在のオフィス図面の作成にも対応しております。九州オフィスづくり.comのスタッフが現地にて採寸を行い、寸法に基づいたオフィス図面を作成いたします。これによりオフィスの現状を把握しやすくなり、レイアウト検討に必要な資料を整えることが可能です。ご要望に応じて図面作成をお手伝いしておりますのでお気軽にご相談ください。オフィス図面をもとに、お客様のご要望に合わせて最適なレイアウトプランをご提案いたします。
通常、最短で3営業日ほどお時間を頂戴しております。九州オフィスづくり.comではオフィス家具メーカーの設計部門と連携しており、状況に応じて迅速な対応が可能です。ただしオフィスの規模やご依頼内容、時期によっては通常よりお時間をいただく場合もございます。あらかじめご相談いただければ、スケジュールの目安についてご案内いたします。ご要望に沿ったレイアウト図面の作成をサポートし急ぎの案件にも可能な限り対応いたしますので安心してお任せください。
オフィスづくりはお任せください
ご対応エリア
福岡県全域
福岡市、久留米市、北九州市、飯塚市、春日市、大牟田市、筑紫野市、大野城市、春日市 など
熊本県全域
熊本市、八代市、天草市、玉名市、合志市、宇城市、荒尾市、山鹿市、菊池市 など
鹿児島県全域
鹿児島市、霧島市、鹿屋市、姶良市、出水市、薩摩川内市、日置市、指宿市、曽於市 など
宮崎県全域
宮崎市、都城市、延岡市、日向市、日南市、小林市、西都市、北諸県郡三股町 など
佐賀県全域
佐賀市、神崎市、吉野ケ里町、上峰町、みやき町、鳥栖市、基山町
上記以外の市町村のお客さまも、まずはお気軽にご相談下さい※離島は対応しておりません。













